We only have 30 days from the time the notice was posted May 14, 2021, making June 14, 2021, the deadline.
This is a follow up to this post: https://allthingsunionbay.wordpress.com/2021/05/18/landowners-letter-to-inspector-of-mines-concerning-the-gravel-sand-pit-application-by-union-bay-estates-aka-kensington-island-properties-1-year-after-commencing-work/
Thanks to the landowner who obtained the application. If you want to download or view the pdf: https://drive.google.com/file/d/1kncnC2Deby2FgIO0K8bco1ZrePb-VPuG/view?usp=sharing
“Proposed start and end date: Jun 30, 2020 to Jun 30, 2030.”
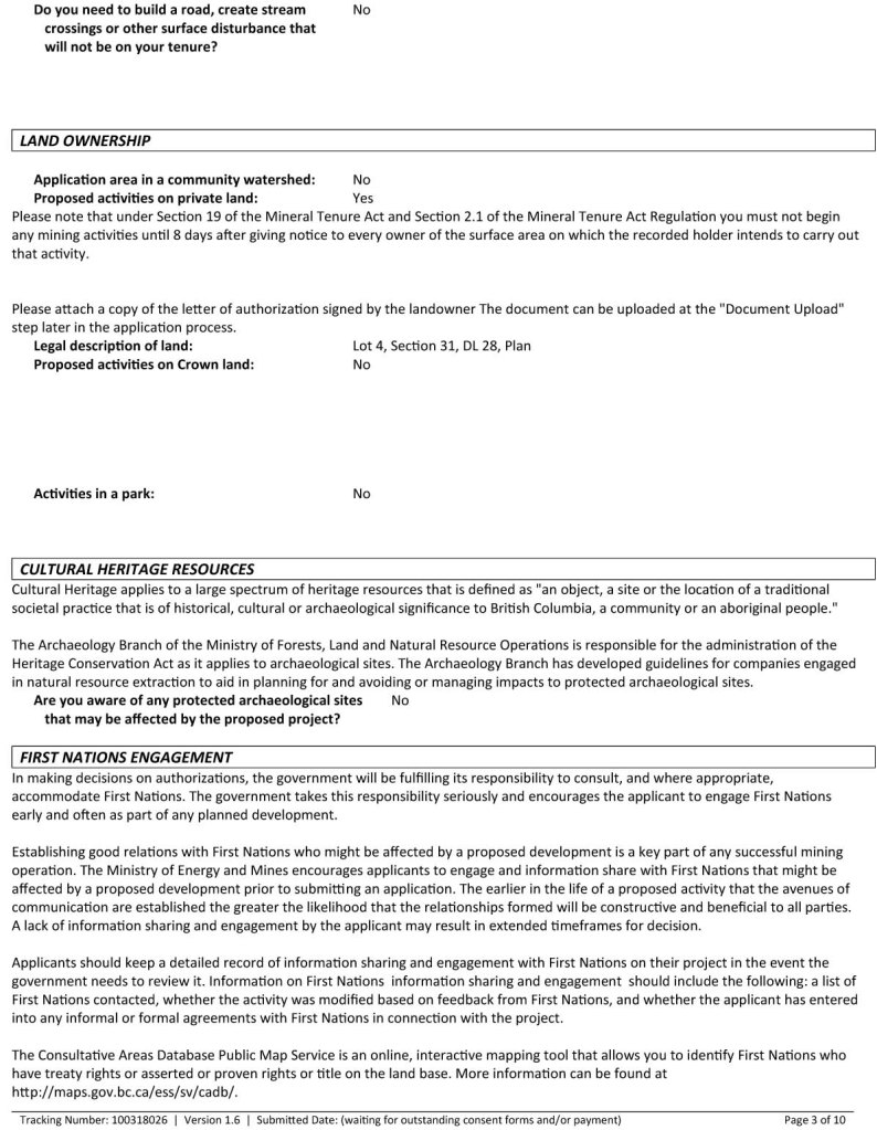
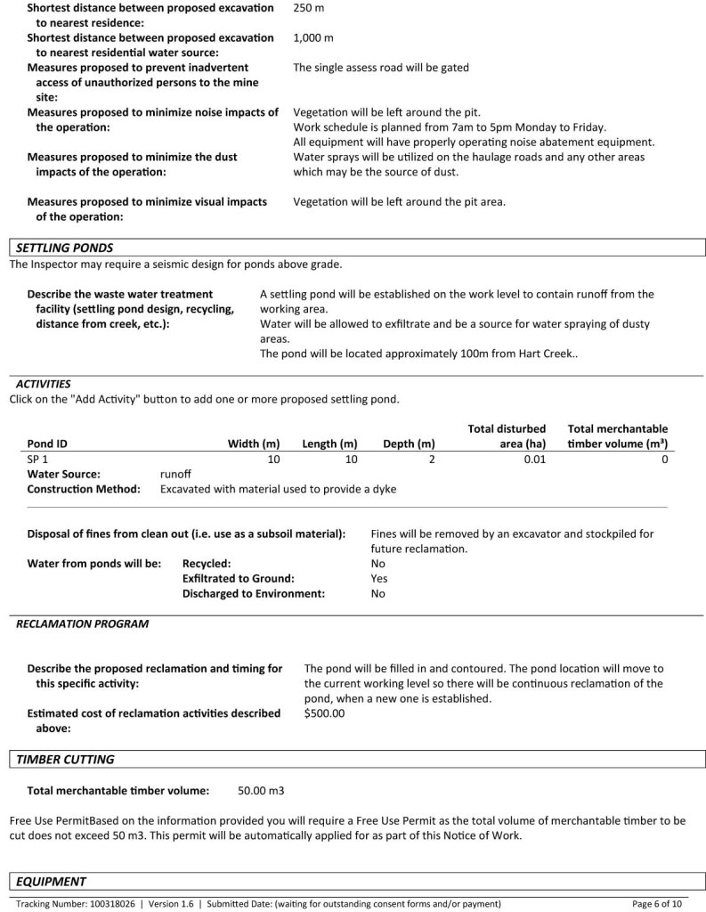
This is part of page 4 and page 5.

Here are the pages in gallery view.










